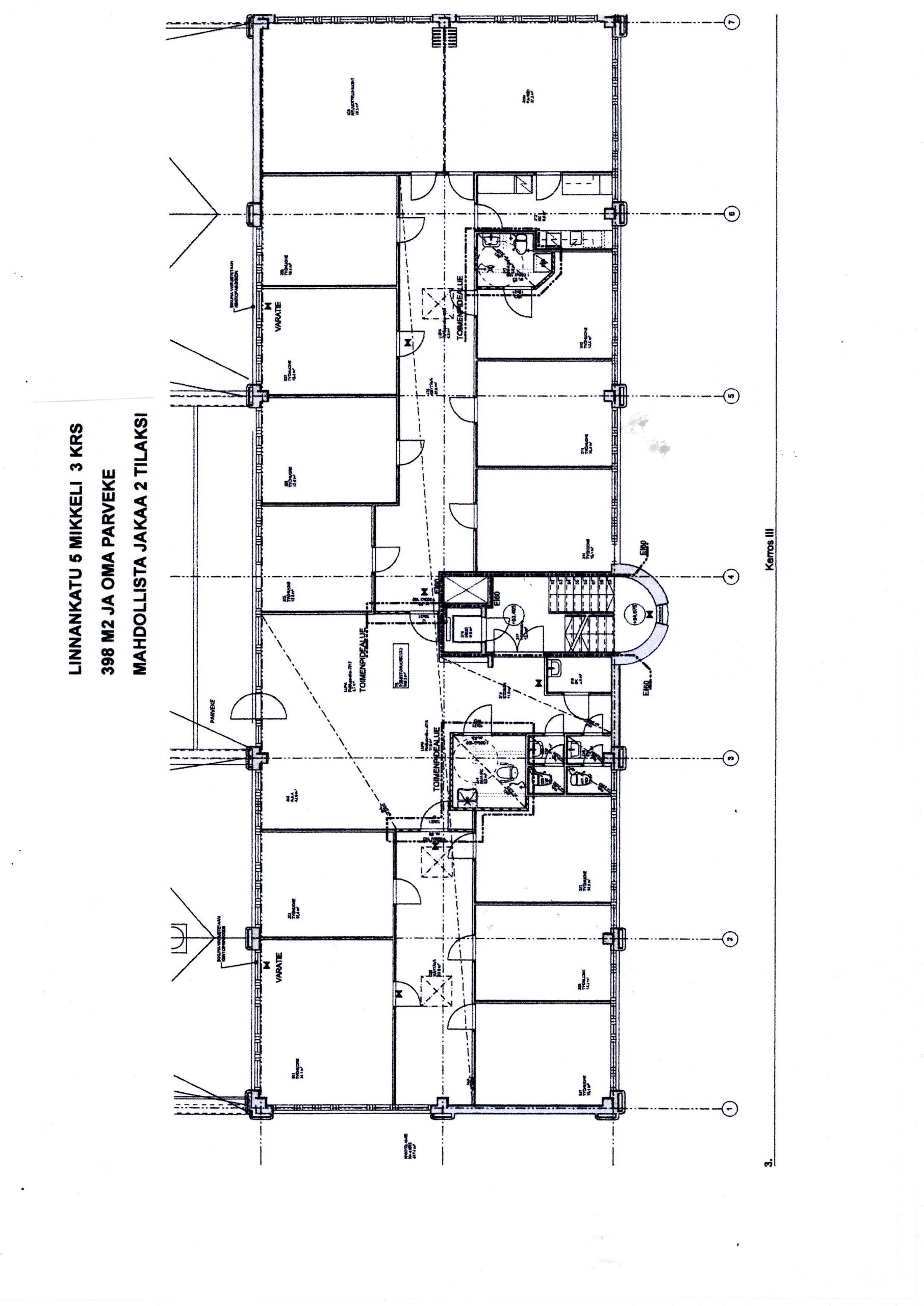
Toimitilan Linnankatu 5 tiedot:

Toimistotila ilmastoinnilla 3 krs, oma parveketila, hissillä esteetön pääsy, keittiötila, 3 WC + 2 Inva-WC suihkulla. Tila mahdollista jakaa kahdeksi eri tilaksi. Lisätilaa vuokrattavissa kiinteistön 2 krs 309 m2 Parkkitilaa vuokrattavissa lämpimästä autohallista ja pihalla lämmityspistokepaikkoja. Tila vapautuu 1.8.2025

Kuva toimitilasta
  • Osoite: Linnankatu 5, 50100 Mikkeli
  • Tyyppi: Toimistotila
  • Pinta-ala: 398,00m2
  • Kauppatapa: Vuokrattavana
  • Vuokrattavana
  • Myytävänä
  • Hinnan lisätiedot: Ei alv tietoa